فا   EN

پروژه مجموعه تفریحی اَسالم

توضیحات:

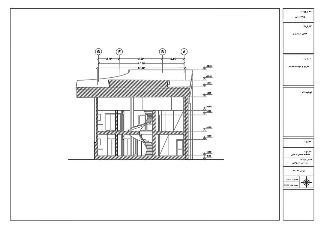
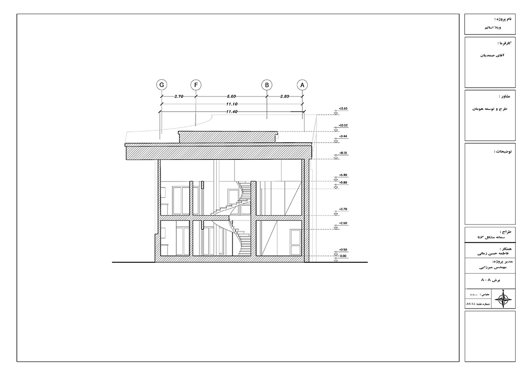
پروژه مجموعه تفریحی اَسالم با زیربنای طراحی 420 مترمربع در شهر اَسالم استان گیلان در زمینی به مساحت
850 مترمربع با هدف یک ویلای تفریحی مسکونی طراحی فاز یک و دو گردید .

تاریخ شروع طراحی در اردیبهشت ماه 1401 و به مدت زمان 3 ماه انجام پذیرفت .

کارفرما و سرمایه گذار پروژه مذکور آقای صمدی می باشد .